线上德州扑克平台

线上德州扑克平台

线上德州扑克平台|咨询电话

027-85516152 (工作日日间)
15327190618 (夜间节假日)
线上德州扑克平台
线上德州扑克平台

通知公告

Notice

武汉市医疗救治中心与门诊自动门工程议标公告

发布时间:2016-11-10 来源:原创文章 作者:本站编辑
字号:线上德州扑克平台线上德州扑克平台

按照线上德州扑克平台 招标议标要求,遵循公开、公平、公正和诚实信用的原则,拟对门诊自动门开展招标议标工作,欢迎有资质的服务商前来参加投标。

一、项目内容

武汉市医疗救治中心门诊自动门

二、项目要求

(一)自动门改造数量:4樘

方案一(平滑自动门方案)洞口尺寸:大门4030(w)x2395(H)mm;连廊门3700(w)x2560(H)mm;门诊南面急诊通道门2805(w)x2760(H)mm;门诊北面职工通道门2750(w)x2660(H)mm;

方案二(其它门不变,连廊门改为折叠自动门方案)洞口尺寸:

2660(w)x2980(H)mm。

(二)自动门技术要求

1、平移自动门

1)承重量为2×150KG

2)小门开口不小于1300mm,大门开口不小于1500mm;

3)开门速度:250-500mm/s可调;闭门速度:250-500mm/s可调;

4)开放时间:2-20s可调;

5)紧闭力:500N

6)整机消耗功率:<150W;

7)工作环境温度:-20℃-+50℃

2、折叠自动门

1)开门速度:可调;闭门速度:可调;

2)开放时间:1-20s可调;

3)开口不小于1600mm;

4)整机消耗功率:<30W;

5)工作环境温度:-20℃-+50℃

(三)其它要求

1、要求自动门设备品牌为国内一线知名品牌,平移自动门电机及感应器,折叠自动门电机及感应器为原装配套;

2、自动门必须有防止夹人的功能;

3、平移自动门、折叠自动门遇阻力应反弹,且力度可调;

4、平移自动门、折叠自动门必须具有与消防联动的接口;

5、平移自动门、折叠自动门在断电时,自动门应能打开一定开度,以利逃生;

6、玻璃必须使用钢化(安全)玻璃;

7、不锈钢材质必须为304#材质(防锈),标厚不低于1.2mm;

8、折叠自动门框为铝合金,表面喷塑;

9、方案一工程栏标价¥105000元(人民币大写:壹拾万伍仟元),  

方案二工程栏标价¥115000元(人民币大写:壹拾壹万伍仟元)。

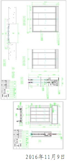
10、本工程施工方案见附图。

三、报名时间

1、2016年11月9日至2016年11月15日(法定节假日除外),逾期不再接受报名。

2、报名地址:武汉市医疗救治中心银潭路1号武汉市医疗救治中心

3、招标联系人:黄高平,联系方式:13638611226,邮箱:[email protected]